
YOUR POSITION: HOME > Information
Edit:Zongxiang Heavy Industry--Lucas Date:2020-02-14 01:01:16
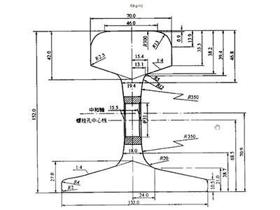
Rail type:
(1) Light rail type, rail material: Q235, 55Q; Rail specifications: 30kg/m, 24kg/m, 22kg/m, 18kg/m, 15kg/m, 12 kg/m, 8kg/m;
(2) Heavy rail type, rail material: 45MN, 71MN?Rail specifications: 50kg/m, 43kg/m, 38kg/m, 33kg/m;
(3) Type of lifting rail, rail material: U71MN, U75V? Rail specifications: QU70kg/m, QU80kg/m, QU100kg/m, qu120kg/m.
Rail
can be divided into light rail, heavy rail and lifting rail according to its
weight, section shape and purpose:
Less than or equal to 30kg is light rail. The quality of light rail is required to be lower than that of gravity rail, and only the chemical composition, tensile strength, hardness and drop weight test are required to be tested. Main Uses: Light rail is mainly used to lay temporary transportation lines and light locomotive lines in forest areas, mining areas, factories and construction sites.light rail China supplier
Heavy rail: used for laying railway, it must bear the pressure, impact load and friction during the operation of the train. it requires sufficient strength and certain toughness, and strict quality requirements. besides ensuring its chemical composition, it also requires inspection of mechanical properties, drop hammer test and acid leaching macrostructure, etc.light rail China supplier
Crane rail: i.e. crane rail, its height is low, head width and waist thickness are large, only chemical composition and tensile strength are required to be tested, and it is used for laying crane rail larger than and trolley rail.light rail China supplier
ZXsteelgroup specializes in the sales of steel rails, mining supporting materials, steel plate sales and steel plate cutting, and strictly controls the quality. After the products are put on the market, they are well received by customers. If you have any need, please feel free to ask for advice or leave us a message on the website. We believe that with your advice and help, we will do better.
Tel:+86 18236766038(WhatsApp)
Email: zxsteel@zxsteelgroup.com
Online Chat
To top